Blatrixo Machine Blatrixo Machine

Industrial Dust Removal High Efficiency Flat Baghouse Dust Collector Used in Cement Factories

Customization: Available
Certification: CE, ISO
Installation
Method:
Vertical

Product Description

Basic Specifications

ModelDLMC
Operation TypeAutomatic
MethodDry Cleaning
Air Volume3000-5000m³/H
Filter TypePolyester Flat Bag
Voltage380V/220V/415V
Capacity36 sets/Month
OriginChina

High-Performance Vacuum Dust Collector

Engineered for durability, efficiency, and versatility in grain, mining, and woodworking projects. Designed with advanced carbon steel and stainless materials, these high-efficiency filter cartridges ensure superior filtration, smooth operation, and energy efficiency.

Vertical Flat Filter Bags
Modular Housing Design
Pulse Jet Cleaning System
Vacuum-Grade Construction (-30kPa)
Industrial Dust Collector
⚙️

Industrial Applications

  • Metalworking (Welding, Grinding)
  • Pharmaceutical & Chemical
  • Cement, Lime, and Gypsum
  • Food and Grain Processing
  • Foundries & Mineral Processing
  • Battery & Electronics
🛠️

Key Configurations

Fans: High-efficiency Siemens, ABB, or WEG motors.

Filter Bags: Premium Donaldson or BWF filtration media.

Pulse Valves: High-response Goyen or DF valves.

Rotary Valves: Durable SKF or ABB motor-driven discharge.

Product Operation Video

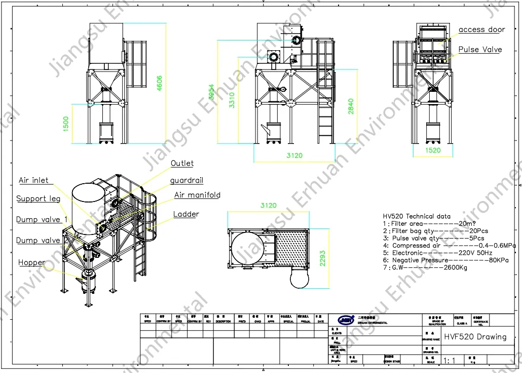
Technical Elevations

Right Elevation

Right Elevation

Left Elevation

Left Elevation

Front Elevation

Front Elevation

Technical Specifications

Model HVF-510 HVF-520 HVF-530
Operating Weight (kg)160028003100
Vacuum Pressure (Pa)-30Kpa-30Kpa-30Kpa
Air Volume (m³)90012002000
Filter Area (m²)102030
Filter Bag Qty (pcs)102030

Drawings & Dimensions

Detailed CAD drawings and dimensional diagrams are available upon inquiry. Our engineering team can provide tailored designs to meet specific project requirements.

Technical Drawing

Service & Support

Standard Warranty: 12 months or 2,000 operating hours.

Extended Warranty: Optional coverage up to 15 months.

Global Support: 24/7 technical assistance and spare parts supply.

Training: On-site or remote operation/maintenance training.

Expert Manufacturing

With over 40 years of expertise, we are a leading manufacturer of environmental protection equipment. Certified with ISO 9001 & CE, our products are exported to over 50 countries.

Factory Facility
Production Process
Finished Product

Other Solutions

  • Cartridge Dust Collectors
  • Welding Fume Extractors
  • Woodworking Dust Solutions
  • Downdraft Tables

Frequently Asked Questions

What is the standard lead time for orders?
Standard models typically ship within 15–20 days, while customized units require 30–45 days depending on the complexity.
Is after-sales service available internationally?
Yes, we provide 24/7 technical assistance and have partnered service centers in key global regions to support our clients.
Can the equipment be customized for specific plant layouts?
Absolutely. We offer modular housing designs and customizable bucket sizes or discharge options like rotary valves and screw conveyors.
What documentation is provided for international shipping?
We provide a complete export package, including the Commercial Invoice, Packing List, Bill of Lading, and COC certificates.
How do I initiate an order?
Please reach out for a formal quote. Once technical requirements are confirmed, you can proceed by issuing a Purchase Order (PO).
What are the available voltage options for the dust collector?
Our systems are compatible with multiple voltage standards, including 380V, 220V, and 415V, to suit different industrial power grids.

Related Products