Blatrixo Machine
Our high-performance flat baghouse vacuum dust collector is engineered for durability, efficiency, and versatility in grain, mining, and woodworking projects. Designed with advanced technology and carbon steel / stainless materials, and high efficiency filter cartridges, this dust collector ensures superior filter efficiency, smooth operation, and fuel efficiency. Suitable for heavy-duty applications, it delivers exceptional performance in diverse terrains and working conditions.
Each component is selected to balance efficiency, durability, and cost-effectiveness, making our dust collector a smart investment for industrial applications.
Custom configurations available upon request.
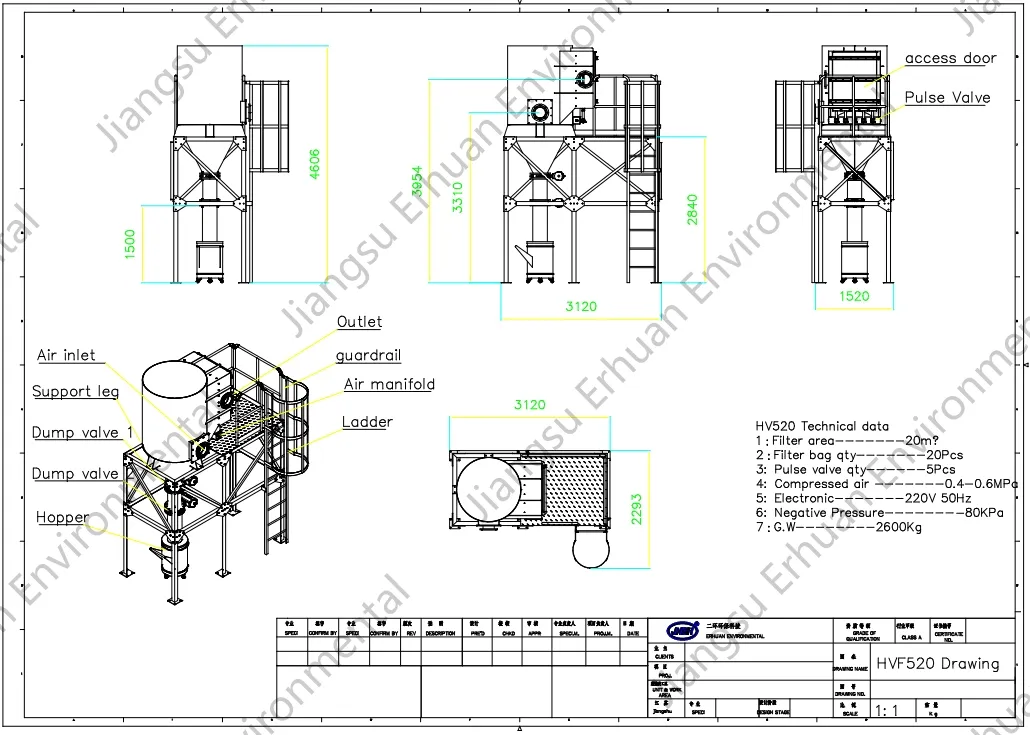
| Model | HVF-510 | HVF-520 | HVF-530 |
|---|---|---|---|
| Operating Weight (kg) | 1600 | 2800 | 3100 |
| Vacuum Negative Pressure | -30Kpa | -30Kpa | -30Kpa |
| Air Volume (m³) | 900 | 1200 | 2000 |
| Filter Area (m²) | 10 | 20 | 30 |
| Filter Bag Size (mm) | 500*1000 | 500*1000 | 500*1000 |
| Filter Bag Qty (pcs) | 10 | 20 | 30 |
With over 40 years of expertise, we are a leading Chinese manufacturer of environmental protection equipment. Certified with ISO 9001 & CE, we export to 50+ countries, offering reliable machinery backed by R&D innovation and strict quality control.

